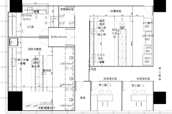
實驗室隔間工程主要規劃項目:
1.隔間材質選擇
根據實驗內容選擇適當的牆面與天花板材質:
●HPL(高壓美耐板):耐酸鹼、耐清潔劑,常用於一般實驗室牆面
●不鏽鋼/鋁合金隔間:高潔淨度需求區,如無塵室、生物實驗室
●玻璃隔間:方便監控與採光,用於行政區與實驗室之間
●PVC或Epoxy地坪:耐化學性與防滑性佳,常搭配無接縫設計
2.功能分區規劃
不同實驗類型區域需隔開:
●乾區/濕區
●無菌/非無菌
●樣品處理區/廢棄物處理區
●危險物儲藏區(化學品、氣體)
3.通風與安全考量
●抽風櫃(Fume hood)與潔淨工作台(Laminar flow)安裝位置
●HVAC 系統與壓差控制(正壓或負壓視應用而定)
●緊急沖洗設施、警報器、消防設備的配置
4.其他要素
●門型選擇:氣密門、自動門,特別是有潔淨或溫控需求時
●照明與電力系統:依照工作照度需求與機台安排
●線路管線設計:避免暴露,方便維護,防火規範遵守
●隔音或減震(例如精密分析儀器室、光學實驗室)

常見應用場景:
●學校/研究單位的化學或生物實驗室
●醫療單位的檢驗科
●製藥廠的無塵室或潔淨區(依GMP規範)
●食品檢測實驗室(HACCP/ISO 22000要求)
實驗室隔間規劃需確認以下資訊:
1. 實驗室用途與類型(生化?化學?物理?…)
2. 預計的空間大小(坪數/平方公尺)
3. 需求隔間數與功能(辦公區、操作區、儲藏室…)
4. 是否有潔淨等級要求(如ISO Class 7、GMP C級等)
5. 是否已有平面圖或初步配置規劃?
